СТОИМОСТЬ:
7 041 800 ₽
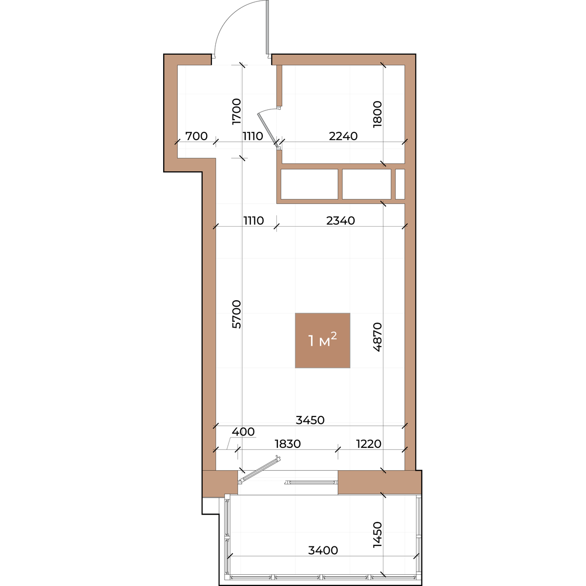
ПЛОЩАДЬ:
25,7 м2
КОМНАТ:
1
ЭТАЖ:
11
№ КВАРТИРЫ:
289
Семейная ипотека 4,6% на весь срок
Семейная ипотека 2,2% на весь срок строительства
Семейная ипотека 4,9% на весь срок
Траншевая ипотека = ипотека в рассрочку
Базовая ипотека от 13,9%




