СТОИМОСТЬ:
12 879 400 ₽
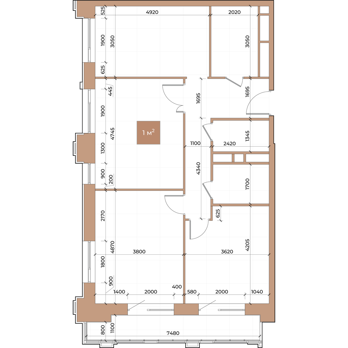
ПЛОЩАДЬ:
90,7 м2
КОМНАТ:
3
ЭТАЖ:
2
№ КВАРТИРЫ:
6
Семейная ипотека 4,6% на весь срок
Семейная ипотека 2,2% на весь срок строительства
Семейная ипотека 4,9% на весь срок
Траншевая ипотека = ипотека в рассрочку
Базовая ипотека от 13,9%




